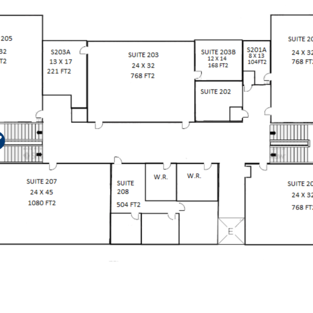
Suite 207
Bluewater Dog Sports
Located on the upper level of the Lochiel Kiwanis Community Centre, this suite is expansive with an overall area of 1080 sq ft. The open room is 24’ by 45’ with 1 door to the main hallway. Whichever layout you are thinking about for your new space, you could accomplish in this suite. A multitude of windows facing south onto Cameron Avenue.
{"slide_to_show":"1","slide_to_scroll":"1","autoplay":"true","autoplay_speed":"5000","speed":"2000","arrows":"false","dots":"true","rtl":"false"}
Tenant Details
Suite Details
| 45 by 24 Main Room | 1080 sq ft |
| TOTAL SQ FT FOR BILLING PURPOSES | 1080 sq ft |
Benefits Accompanying Leased Suite
- Utilities included (heat, a/c, water, hydro, electricity).
- Connect your own wifi or talk to us about your needs.
- Free parking for you, your team and your guests.
- The Centre is accessible, having elevator access to all four levels.
- You have the option of cleaning services by the Centre’s maintenance team.
- As a partner in the Centre, you have preferred use of the Kiwanis room at a reduced rental cost.
- Secure access to the Community Centre 24 hrs a day, 7 days a week
- Sharing of resources in this community minded environment.
- Rental rate is for Not for Profit, Charity or Non Profit Organizations.
- No HST charged on leasing of suites.

